Bought with Cody W Duff • Magnolia Mountain Realty
$267,000
$259,900
2.7%For more information regarding the value of a property, please contact us for a free consultation.
4 Beds
2 Baths
2,016 SqFt
SOLD DATE : 07/01/2025
Key Details
Sold Price $267,000
Property Type Single Family Home
Sub Type Single Family Residence
Listing Status Sold
Purchase Type For Sale
Square Footage 2,016 sqft
Price per Sqft $132
MLS Listing ID 359593
Sold Date 07/01/25
Bedrooms 4
Full Baths 2
Year Built 1984
Lot Size 1.520 Acres
Property Sub-Type Single Family Residence
Property Description
Tucked away on the quiet rural road of Rothwood, this charming Cape Cod in Monroe is a hidden gem. Nestled on over 1.5 private acres, the home offers serenity and spacealong with a long list of modern updates. Enjoy peace of mind with a brand new roof, new windows, two new heat pumps, luxury vinyl plank flooring throughout, and completely renovated kitchen and bathrooms. Every detail has been thoughtfully upgraded, so you can move in and unwindno projects needed. Just settle in and enjoy the quiet country lifestyle.
Location
State VA
County Amherst
Rooms
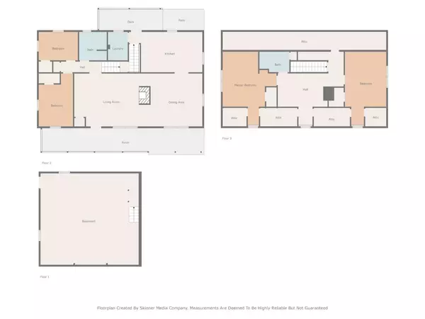
Other Rooms 19.10x21.20 Level: Level 2 Above Grade
Dining Room 15x15.30 Level: Level 1 Above Grade
Kitchen 21.20x11.80 Level: Level 1 Above Grade
Interior
Interior Features Drywall, Main Level Bedroom, Main Level Den, Tile Bath(s)
Heating Heat Pump
Cooling Heat Pump
Flooring Vinyl Plank
Fireplaces Number 1 Fireplace
Exterior
Exterior Feature Off-Street Parking, Patio, Porch, Front Porch, Rear Porch
Roof Type Shingle
Building
Story One and One Half
Sewer Septic Tank
Schools
School District Amherst
Others
Acceptable Financing VA
Listing Terms VA
Read Less Info
Want to know what your home might be worth? Contact us for a FREE valuation!
Our team is ready to help you sell your home for the highest possible price ASAP

laurenbellrealestate@gmail.com
4109 Boonsboro Road, Lynchburg, VA, 24503, United States






